Leading CAD Outsourcing Company offers solutions of Engineering CAD Services, Design Drafting & 3D Modeling

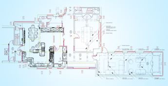
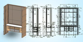
Millwork Drafting Projects

Need help on an ongoing basis?

We establish long term business relationships with clients and are committed to total customer satisfaction.