High-quality joinery manufacturing is detail-oriented and hence expensive. Our joinery drawing services bring contractors, architects and woodworkers on same page to create custom designs with ease. By delivering detailed millwork drafting, we ease design communication, reduce iterations and help you stay profitable.
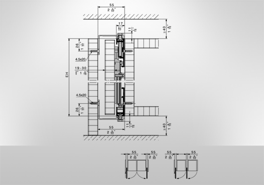
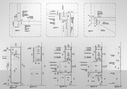
From standard joinery to high-end bespoke furniture, we deliver accurate 2D joinery manufacturing drawings, woodworking drawings and 3D models using AutoCAD®, SolidWorks, and Inventor®. You get to avoid rework and stay on schedules through our joinery working drawings and BoMs for preplanning of shop floor activity.
Whether you are looking to create flawless molds, trims etc. in living room or kitchen cabinets and backsplash, our joinery drafting teams are equipped to handle projects of any size and complexity. We go beyond just joinery drawings and drafting to offer value-added insights.
Kitchens & Bathrooms
Cupboards & Drawers, Windows & Doors, Panels, Bench Tops, Splash back, Vanities
Storage Solutions
Drawers, Shelving, Storage Seating, Cabinets, Lockers
Shop Fitting
POS Counters, Built in Shelving, Wall Panels, Custom Racks, Fitting Rooms, Entertainment units
Fixed Office Joinery
Partitions, Desks, Storage Units, Shelving, Kitchenettes, Reception Counters
Whether you want to construct joinery from scratch or remodel the interiors, our joinery specialists enable hassle-free joinery construction keeping the existing furniture as-is. We specialize in joinery drafting for a range of wood types including MDF, particleboard, solid wood and many more along with corian countertops and tables, stone drawings, laminates and veneer selection.












Need help on an ongoing basis?
We establish long term business relationships with clients and are committed to total customer satisfaction.