Leading CAD Outsourcing Company offers solutions of Engineering CAD Services, Design Drafting & 3D Modeling

Rebar Detailing Services

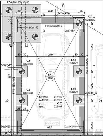
Accurate rebar detailing for precise estimates, waste reduction, and savings on construction costs.

Contact Our Rebar Detailing Experts  »

Achieve Code-Compliant, Constructible Designs with Precision Rebar Detailing Services

Managing in-house rebar detailers is a resource-intensive task, requiring continuous training and software updates. It also affects project scalability and flexibility while restricting the expertise pool. Inaccurate rebar detailing drawings, delays and errors from outdated 2D methods can also derail your project.

TrueCADD understands these challenges. We offer precise and accurate Rebar detailing services for architects, designer, contractors and building engineers. Our experienced rebar detailers specialize in 3D rebar detailing using Revit and AutoCAD, ensuring precise rebar shop drawings and efficient structural rebar connections. We address the complexities of reinforcement detailing head-on, delivering accurate rebar detailing models, rebar shop drawings and optimized 3D rebar modeling.

Our clash-coordinated designs of rebar detailing connections and efficient rebar estimation helps architects, contractors, and engineers collaborate for constructability, keeping structural integrity, schedules and budgets on track.

  • Autodesk Revit
  • Autodesk AutoCAD
  • Autodesk NavisWorks
Outsource Rebar Detailing Services to us →

Our Rebar Detailing Services

Expert Rebar Detailing for Optimized Efficiency to Streamline Your Construction Projects

bullet img

Rebar 2D & 3D Modeling

Accurate rebar 2D and 3D modeling using Revit and clash detection, ensuring precision, efficiency, and reliability in structural detailing.

bullet img

Rebar Coordination

Seamless integration and coordination with other building elements like beams and columns.

bullet img

Quantity Takeoff

Precise material estimates for effective cost control and procurement.

bullet img

Rebar Shop Drawings

Comprehensive shop drawings and details for accurate installation and placement of rebar.

bullet img

Reinforced Concrete Detailing

We creates precise rebar drawings for fabricating, placing, and finishing concrete and rebar, ensuring structural accuracy, integrity, and compliance in reinforced concrete construction projects.

bullet img

Bar Bending Schedules

Detailed instructions for accurate fabrication and bending of rebar.

Enhance Structural Integrity with Precision 3D Rebar Modeling.

Our Rebar Detailing Service Deliverables

  • Rebar Concrete Shop Drawings
  • Rebar 2D & 3D Modeling
  • Bar Bending Schedules
  • Rebar lists for Beams, Slabs, Columns, Walls, Foundations and other Structures
  • Total Rebar Estimation
  • Rebar Foundation Detailing
  • Footing Detailing
  • Rebar Junction Coordination Drawings
  • Concrete Joint, Roof Truss, and Slab Detailing
  • Grade Beam Detailing
  • Concrete Masonry Detailing
  • Retaining Walls Detailing
  • As-built Drawings

End-to-End Rebar Detailing Services Delivered by TrueCADD

Our team collaborates closely with your engineers and contractors to guarantee adherence to industry standards and your project’s specific requirements. We leverage AutoCAD and Revit to create precise 3D rebar detailing models at LOD 400, precise rebar detailing drawings, and accurate bar bending schedules for smooth integration with your design. TrueCADD’s deep understanding of structural engineering principles ensures accurate rebar estimation and optimal placement, minimizing waste, errors, and rework.

Benefits of Outsourcing Rebar Detailing Services

  • Reduced construction errors and rework
  • Optimized material usage and reduced waste
  • Improved structural integrity and safety
  • Reduced risk of accidents and delays on-site
  • Improved project efficiency and timelines
  • Significant cost savings on materials
  • Enhanced communication and collaboration
  • Accurate and detailed documentation

Our Customers

hhcp
studio jaed
cci
petrofac
bec
keo
keiwit
plowman craven

Achieve Construction Excellence with TrueCADD’s Revit Rebar Detailing Services.

FAQ’s related to Rebar Detailing Services

What is rebar detailing, and why is it important for my construction project?

Rebar detailing is the process of creating detailed drawings and schedules that specify the size, shape, quantity, and placement of reinforcing steel bars (rebar) within concrete structures. Accurate rebar detailing is essential to ensure the structural integrity, safety, and longevity of your construction project.

Why should I outsource my rebar detailing instead of doing it in-house?

Outsourcing rebar detailing offers several advantages, including cost savings, faster turnaround times, access to specialized expertise and software, and the ability to focus on your core competencies while leaving the detailing to the experts.

What experience and qualifications do your rebar detailers have?

Our rebar detailers are highly skilled and experienced professionals with a deep understanding of industry standards, codes, and best practices. They are proficient in using various rebar detailing software and are committed to delivering accurate and efficient designs.

What types of rebar detailing services do you offer?

We offer a comprehensive range of rebar detailing services, including 3D rebar modeling, shop drawings, bar bending schedules, quantity takeoffs, and coordination drawings. We can tailor our services to meet the specific needs of your project.

What software do you use for rebar detailing?

We use the latest rebar detailing software such as Autodesk Revit etc. as per project needs. Our software capabilities allow us to create accurate and detailed models, drawings, and schedules for your project.

How do you ensure the accuracy and quality of your rebar detailing services?

We have a rigorous quality control process in place to ensure the accuracy and quality of our deliverables. Our experienced rebar detailers meticulously review all drawings and schedules, and we use clash detection software to identify and resolve any potential conflicts before fabrication.

Can you work with my existing BIM models?

Yes, we can seamlessly integrate our rebar detailing services with your existing BIM models. This ensures a coordinated and efficient workflow, reducing the risk of errors and delays.

How do you manage communication and collaboration throughout the project?

We maintain open and transparent communication with our clients throughout the project. We utilize various communication channels, such as email, phone, and video conferencing, to keep you informed of the progress and to address any questions or concerns promptly.

What is your turnaround time for rebar detailing projects?

Our turnaround time depends on the complexity and scope of the project. However, we are committed to delivering your project on time and within budget, without compromising on quality.

What are your pricing options for rebar detailing services?

We offer flexible pricing options to suit your budget and project requirements. We can provide a fixed-price quote for your entire project or bill you on an hourly basis.

How do I get started with your rebar detailing services?

Simply contact us with your project details, and we will provide you with a free consultation and quote. We look forward to working with you to deliver your project successfully.

Get Code-Compliant Reinforcement Solutions for Construction Projects.

Need help on an ongoing basis?

We establish long term business relationships with clients and are committed to total customer satisfaction.