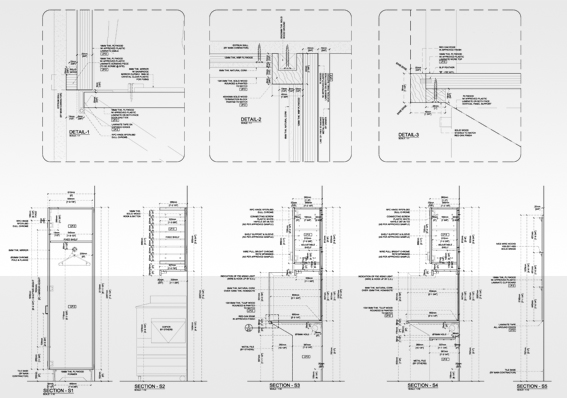
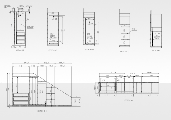
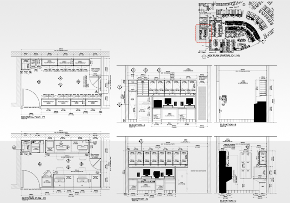
Our millwork drafting experts study your architectural plans to create millwork drawings for seamless communication between architects, furniture designers, woodworkers, contractors and manufacturers. We create detailed 2D millwork shop drawings with BoMs to reduce ECOs from shop floor. Our strict quality checks of comparing input drawings and output drawings as per design standards such as NKBA, NFC, and AWI ensure error-free custom millwork manufacturing.
We offer millwork drafting services for various types of wood, glass, and hybrid casework and millwork products. By using woodwork plugins, CAD platforms like SolidWorks SWOOD, Pytha, Microvellum and AutoCAD and automation tools for precision drafting and enable manufacturing as designed.
Our millwork CAD drafting services offer a range of deliverables with onshore and offshore assistance to adopt right design approach – top down or bottom up. In addition to CAD deliverables, we extend our services to help you get insights on competitor product features for new millwork design development.
– Global Head of Engineering, Product Design Studio, USA
Retail shop outlets
Residential
Offices and commercial buildings
Restaurants, hotels & food chain shops
Educational institutions
Government buildings
Public libraries and museums
Healthcare facilities












Need help on an ongoing basis?
We establish long term business relationships with clients and are committed to total customer satisfaction.