Leading CAD Outsourcing Company offers solutions of Engineering CAD Services, Design Drafting & 3D Modeling

MEP Shop Drawing Services

Precise and High-quality Revit MEP Shop Drawing Solutions

Outsource your MEP Shop drawing needs  »

MEP Shop Drawing Services for Seamless MEP Installation and Fabrication

We support contractors, engineering consultants and MEP trade contractors to gain error-free and quick MEP equipment installation onsite with precise and detailed MEP shop drawings.

Our team understands that CAD-based 2D MEP shop drawings may often lead to geometric deviations, erroneous installation, inaccurate prefabrication, and incorrect dimensions for site verification. We deliver coordinated and clash-free shop drawings to ensure dimensional and data accuracy of MEP components for your MEP project.

We offer customized MEP shop drawing services for HVAC, electrical, plumbing, Mechanical piping, fire protection etc. Our coordinated functional shop drawings improve building design accuracy and delivery.

Accelerate your construction delivery schedule by more than 50%.

Contact our team TODAY  »
mep-shop-drawing-services-intro

Precise and detailed Revit MEP coordinated construction drawings

Our team of Revit certified MEP experts create MEP-coordinated shop drawings using the latest processes and tools including Revit® MEP and AutoCAD®. Our coordinated and clash-free HVAC shop drawings, plumbing drawings, and electrical and firefighting drawings are created as per standards such as Cobie, NBS, RIBA, ANSI, BSI, ASME, and ISO. We have set a proven track record of successfully completing projects with a skilled and experienced team of engineers and drafters.

Our team of MEP experts extract MEP shop drawings from coordinated 3D Revit models to help you gain accurate schedules, fabrication, and hassle-free installation while saving time and costs.

Our MEP shop drawings services span a global clientele including the USA, UK, Australia, Canada, Europe, and the Middle East.

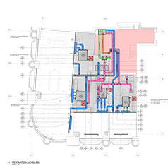
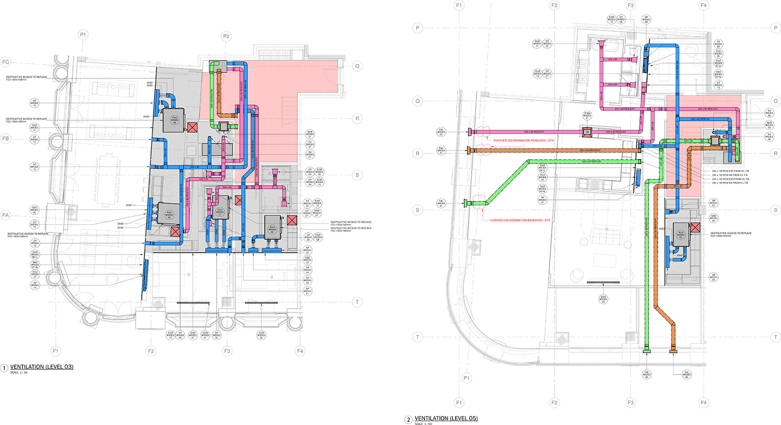
Residential Ventilation Service Plan

Wall Elevations Sections for Hospital

Febricaton Piping Spool Drawing

Fire Protection Shop Drawing (MEPF)

Our Revit MEP shop drawings service offerings

img

Mechanical Shop Drawings

We deliver accurate mechanical shop drawings & assembly drawings for fabricators, consultants, & engineers for pre-fabrication of Mechanical/HVAC components.

img

Electrical Shop Drawings

We build dimensionally accurate layouts & routing for electrical components including distribution, security systems, and lighting systems for seamless installation.

img

Plumbing Shop Drawings

We create error-free plumbing shop drawings for domestic water systems, drainage water piping as well as natural gas piping systems as per project needs.

img

HVAC Duct Shop Drawings

We create clash-free HVAC Duct shop drawings with detailed information on placement of ducts and equipment for fabricators and contractors.

img

Piping Shop Drawings

We create accurate, clash-free and coordinated spool drawings and shop drawings for piping systems as per project requirements.

img

Modeling/Coordination for Mechanical Rooms

We provide mechanical modeling & coordination solutions for HVAC, Electrical, Piping, Plumbing, and Fire Protection consultants and fabricators for various sectors.

img

MEP BIM Coordination

We provide MEP BIM Coordination services including HVAC BIM, Piping BIM, and Plumbing BIM Coordination Services for MEP Contractors/ Engineers.

img

Detailed MEP Documentation

We create coordinated and clash-free MEP 3D models as well as isometric drawings and comprehensive construction documentation for architects and general contractors.

What our Clients Say

My experience of working with TrueCADD has been extremely positive. I look forward to keep working with this outstanding outsourcing company for many years to come. The speed and quality of the MEP shop drawings delivered by TrueCADD were of high quality and helped us save cost and time.

-CEO, MEP Consultancy, USA

Our Customers

hhcp architects
petrofac
keo
plowman craven
keiwit
weoneil

Client-centric MEP modeling and MEP shop drawing services

We use automation through Dynamo and other APIs to accelerate the 3D modeling process. We also reinforce our data accuracy and validity for MEP models and shop drawings with Revit families for fixtures, HVAC equipment, and other MEP components.

We serve a range of key stakeholders including MEP designers and consultants, specialty contractors, manufacturers, fabricators, MEP installers, and engineers. We have provided winning solutions for a global clientele that includes 51+ countries, with more than 30 Revit-certified professionals, 25+ years of experience, and 100+ MEP projects delivered successfully.

We offer MEP detailing and shop drawing services forn multiple sectors including residential apartments, hospitals & quarantine facilities, underground infrastructural utilities, retail & commercial complexes, medical laboratories, educational institutions, power plants, and industrial structures.

Advantages of outsourcing your MEP shop drawing requirements

Getting detailed, accurate, and project-specific MEP shop drawings is critical to achieving winning MEP installations for fast-track and complex projects. As a trusted BIM outsourcing company entity, we offer clients best-in-class coordinated shop drawings to help you stay competitive and gain greater ROI.

  • Significant improvements in productivity and building quality
  • Quick turnaround time for manufacturing and installation of MEP equipment
  • Accurate scheduling and cost estimates for MEP components
  • Identifying potential problems before fabrication & installation
  • Enhanced offsite fabrication and better decision-making
  • Clear design intent with high-quality 3D deliverables and 2D documentation
  • Clash-free and technically enriched MEP shop drawings
  • Competitive pricing with a successful track record

Reduce rework, and save cost and time with coordinated MEP shop drawings.

Need help on an ongoing basis?

We establish long term business relationships with clients and are committed to total customer satisfaction.