Leading CAD Outsourcing Company offers solutions of Engineering CAD Services, Design Drafting & 3D Modeling
←  Back to Millwork Case Studies

Detailed CAD Drafting for Marine Furniture, Ireland

CAD Drafting Reduces Costs by 70% of Marine Furniture Manufacturing

Client Profile: Bespoke luxury interior fit-out manufacturer
Industry: Furniture Manufacturing
Inputs: Architect PDFs, marked up PDFs
Deliverables: PDF with dwg
CAD Drafting Marine Furniture

Project Samples

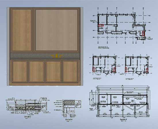
Vanity Unit CAD Model and Design Drafting Vanity Unit CAD Model and Design Drafting
Vanity Unit Model and Detail CAD Drawings Vanity Unit Model and Detail CAD Drawings

Related Case Studies

Need help on an ongoing basis?

We establish long term business relationships with clients and are committed to total customer satisfaction.