Leading CAD Outsourcing Company offers solutions of Engineering CAD Services, Design Drafting & 3D Modeling
←  Back to Millwork Case Studies

3D CAD Models for Kitchen Cabinet Manufacturer, USA

Utilizing macro-based QTOs, cabinet makers increased their bid-to-win ratio

Client Profile: Kitchen cabinet manufacturer
Industry: Residential furniture
Inputs: Architectural drawings
Deliverables: 3D CAD Models with BOMs
Improved Bidwin Ratio Cabinet Manufacturers Macro

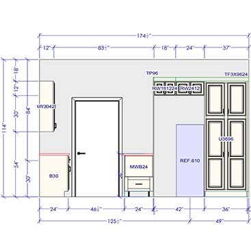
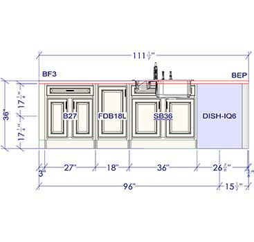
Project Samples

Related Case Studies

Need help on an ongoing basis?

We establish long term business relationships with clients and are committed to total customer satisfaction.