Leading CAD Outsourcing Company offers solutions of Engineering CAD Services, Design Drafting & 3D Modeling
←  Back to Millwork Case Studies

Joinery CAD Shop Drawings from Architectural Plans, UK

Accurate Joinery Shop Drawings Significant Savings Time & Cost for Joinery Manufacturer

Client Profile: Joinery design and manufacturing firm
Industry: Commercial millwork
Inputs: Architectural plan drawings and hand sketches
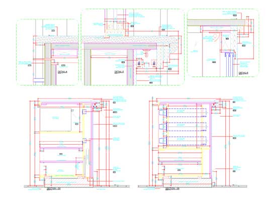
Deliverables: Detailed CAD shop drawings for millwork and joinery
Joinery shop drawings architectural plans

Project Samples

Manufacturing CAD Drawings for Joinery Manufacturing CAD Drawings for Joinery
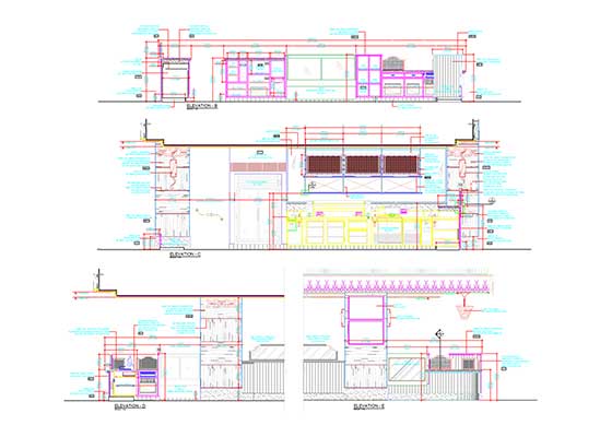
Detailed Joinery Shop Drawings Detailed Joinery Shop Drawings
Architectural Shop Drawings for Office Architectural Shop Drawings for Office
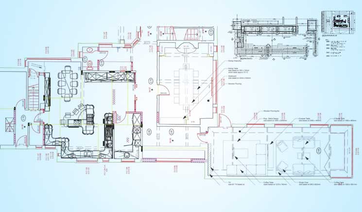
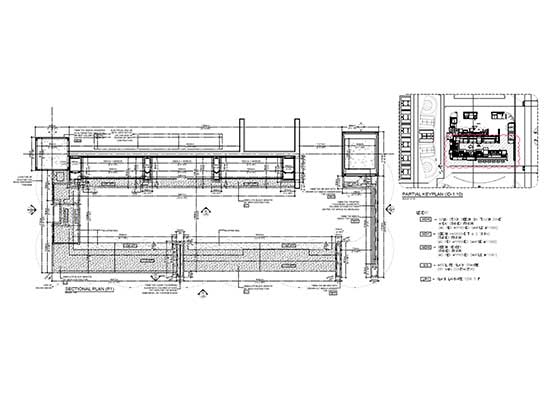
Architectural MillWork Drawings Architectural MillWork Drawings
2D MillWork Shop Drawings 2D MillWork Shop Drawings
2D Commercial Floor Plan 2D Commercial Floor Plan

Related Case Studies

Need help on an ongoing basis?

We establish long term business relationships with clients and are committed to total customer satisfaction.