Leading CAD Outsourcing Company offers solutions of Engineering CAD Services, Design Drafting & 3D Modeling
←  Back to Millwork Case Studies

CAD Detailed Drawings & 3D Models for Retail Furniture, UK

Concept Design to CAD Detailed Drawing of Retail Furniture Manufacturer, UK

Client Profile: Retail Furniture Designer and Manufacturer
Industry: Retail Furniture
Inputs: Hand Drawn Concept Sketches
Deliverables: 2D CAD drawings & 3D models with manufacturing details
CAD Detailed Drawings Retail Furniture

Project Samples

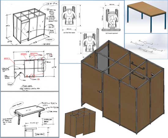
3D Models and Manufacturing Drawings for Retail Store Fitting Room 3D Models and Manufacturing Drawings for Retail Store Fitting Room
Concept Drawings to CAD Detail Design Concept Drawings to CAD Detail Design

Related Case Studies

Need help on an ongoing basis?

We establish long term business relationships with clients and are committed to total customer satisfaction.