Leading CAD Outsourcing Company offers solutions of Engineering CAD Services, Design Drafting & 3D Modeling
←  Back to Millwork Case Studies

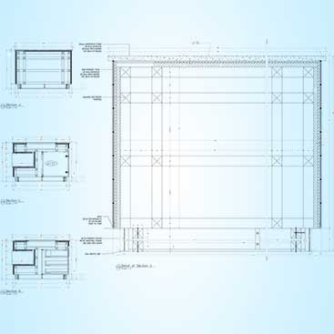
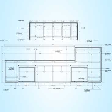
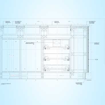
Detailed Shop Drawings for Millwork Manufacturers, USA

CAD Drafting with Saves Costs for Millwork Manufactures

Client Profile: Designer and Manufacturer of Architectural Millwork
Industry: Architectural Millwork
Inputs: Architectural Floor Plans
Deliverables: Approval Drawings and Detailed Shop Drawing
MillWork Shop Drawings MillWork Manufacturers

Project Samples

Related Case Studies

Need help on an ongoing basis?

We establish long term business relationships with clients and are committed to total customer satisfaction.