Leading CAD Outsourcing Company offers solutions of Engineering CAD Services, Design Drafting & 3D Modeling
←  Back to Millwork Case Studies

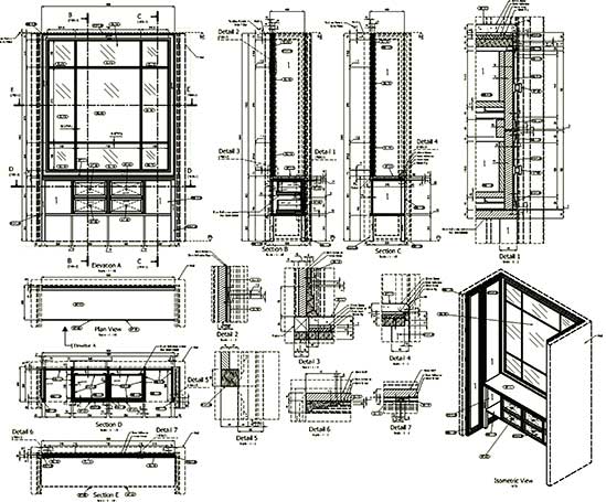
Cabinet CAD Drafting for Residential Furniture, USA

Offshoring Cabinet CAD Drafting Results in 50% Faster Turnaround Time

Client Profile: Residential furniture manufacturer
Industry: Furniture Manufacturing
Inputs: Architect’s PDFs, marked up PDFs
Deliverables: PDF with DWG
Cabinet CAD Drafting Residential Furniture

Project Samples

Library Unit 3D Model Library Unit 3D Model
Cabinet CAD Drafting for Library unit Cabinet CAD Drafting for Library unit
3D CAD Model of Library Unit 3D CAD Model of Library Unit

Related Case Studies

Need help on an ongoing basis?

We establish long term business relationships with clients and are committed to total customer satisfaction.