Leading CAD Outsourcing Company offers solutions of Engineering CAD Services, Design Drafting & 3D Modeling
←  Back to Millwork Case Studies

Millwork CAD Shop Drawings for Institutional Furniture, USA

Millwork & Casework Shop Drawings with High Quality and Faster TAT of Institutional Furniture Manufacturers

Client Profile: Institutional furniture design and manufacturing firm
Industry: Institutional furniture manufacturing
Inputs: Architectural plan drawings and hand sketches
Deliverables: CAD shop drawings, assembly and installation guides
MillWork CaseWork shop drawings furniture manufacturers

Project Samples

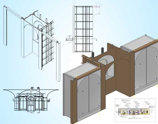
Display Cases Drawings and 3D Model Display Cases Drawings and 3D Model
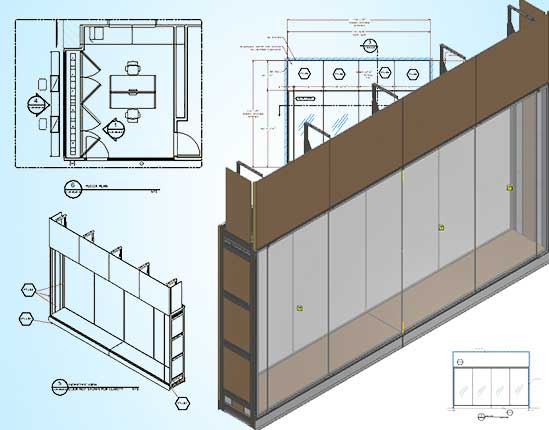
Display Cabinets Drawings with 3D Model Display Cabinets Drawings with 3D Model
CaseWork Shop Drawings and Rendering CaseWork Shop Drawings and Rendering

Related Case Studies

Need help on an ongoing basis?

We establish long term business relationships with clients and are committed to total customer satisfaction.