Leading CAD Outsourcing Company offers solutions of Engineering CAD Services, Design Drafting & 3D Modeling
←  Back to BIM Services Case Studies

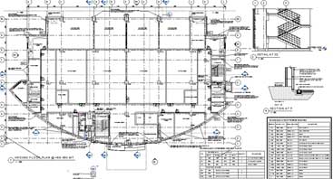
Coordinated 3D BIM model for Data Center Building

Revit Modeling and clash-free 3D model for a Data Center Building, India

Client Profile: Architectural Firm
Industry: Commercial Building
Inputs: 2D Drawings
Deliverables: Coordinated Revit 3D model, sheet setup, schedule and joint details
Coordinated 3D BIM Model Data Center Building

Project Samples

Related Case Studies

Need help on an ongoing basis?

We establish long term business relationships with clients and are committed to total customer satisfaction.