Leading CAD Outsourcing Company offers solutions of Engineering CAD Services, Design Drafting & 3D Modeling
←  Back to Mechanical Drafting & Modeling Case Studies

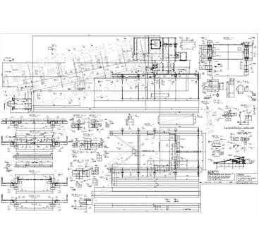
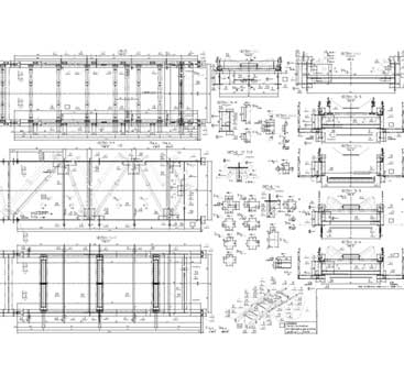
SolidWorks 3D Modeling for Structural Metal Products, Russia

3D CAD modeling enabled developing 1500 drawings/month for Steel Structure Manufacturer

Client Profile: Manufacturer of steel structure for building products
Industry: Fabricated Structural Metal Products
Inputs: 2D PDF drawing and PDF BoM
Deliverables: 3D models, assembly and part drawings in SolidWorks, STEP file, DXF and PDF of all the drawings
3D Modeling Steel Structure Manufacturer

Project Samples

Related Case Studies

Need help on an ongoing basis?

We establish long term business relationships with clients and are committed to total customer satisfaction.