Leading CAD Outsourcing Company offers solutions of Engineering CAD Services, Design Drafting & 3D Modeling
←  Back to Architectural Case Studies

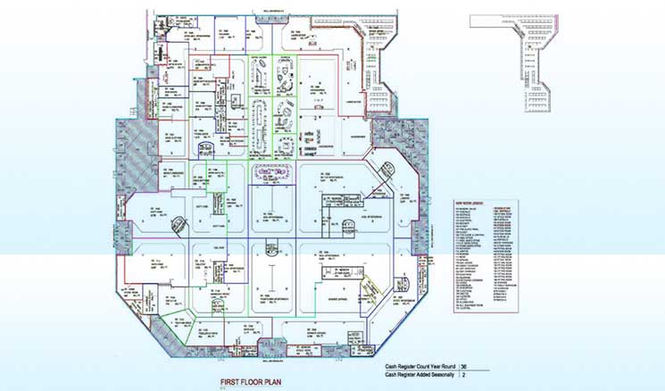
PDF to CAD Conversion of Commercial Building

Converted PDF drawings into CAD files for 4 storey building, USA

Client Profile: Architectural Design Company
Industry: Multistory Commercial Building
Inputs: 2D PDF files of floor plans of two floor plans & framework
Deliverables: 2D CAD drawing for 400 floors in AutoCAD
Floor Plan CAD Conversion

Project Samples

PDF Drawings PDF Drawings

Related Case Studies

Need help on an ongoing basis?

We establish long term business relationships with clients and are committed to total customer satisfaction.