Leading CAD Outsourcing Company offers solutions of Engineering CAD Services, Design Drafting & 3D Modeling
←  Back to Mechanical Drafting & Modeling Case Studies

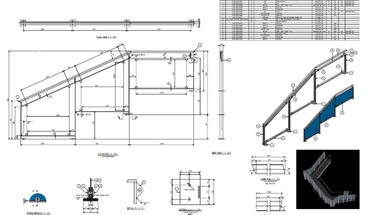
Converted Revit BIM to Inventor CAD Models for Stadium, Australia

Reduced delivery time by 30% and cost by 18% by converting Revit data to Inventor

Client Profile: Manufacturer of Industrial Equipment
Industry: Construction
Inputs: Revit layout for the seating arrangement of a football arena
Deliverables: 2D manufacturing shop drawings and 3D models in Autodesk Inventor
Convert BIM Data Inventor CAD Models Fabrication

Project Samples

Related Case Studies

Need help on an ongoing basis?

We establish long term business relationships with clients and are committed to total customer satisfaction.